Vchodové plastové dvere
- Tepelná izolácia: Uw (Ud) až 1,1 W/m²k
- Prenos tepla rámu: (Uf) 1,3 W/m²k
- Šírka zasklenia: až 42 mm
- Kovanie: KFV
- Stavebná hĺbka rámu: 70 mm
- Výška rámu: /krídla/viditeľný/(hrúbka) 80/120/171 mm
- Farba: VEKA® nestandard / VEKA® standard
- Počet tesnení: 2
- Určenie: všetky typy stavieb
- Počet komôr: 5 rám / 3 krídlo
Dvere z profilov VEKA SOFTLINE 82MD vďaka svojej stabilite a výborným konštrukčným vlastnostiam umožňujú realizovať projekty s vynikajúcou energetickou účinnosťou.
- profil triedy A s extra silnými stenami
- novatívny viackomorový systém s konštrukčnou hĺbkou 82 mm a tromi tesneniami spĺňa najvyššie požiadavky
- je vhodný ako pre novú výstavbu, pasívne domy, tak aj pre rekonštrukciu
- prah: bezbariérový
Obzvlášť hlboké uloženie skla s hĺbkou zasklievacej drážky 25 mm pre optimalizovaný priebeh izoterm bráni okrem iného tvorbe nežiaduceho kondenzátu na vnútornej strane.
- Tepelná izolácia: Uw (Ud) až 0,85 W/m²k
- Prenos tepla rámu: (Uf) 1,2 W/m²k
- Šírka zasklenia: až 52 mm
- Kovanie: KFV
- Stavebná hĺbka rámu: 82 mm
- Výška rámu: /krídla/viditeľný/(hrúbka) 83/125/175 mm
- Farba: VEKA® nestandard / VEKA® standard
- Počet tesnení: 3
- Určenie: všetky typy stavieb
- Počet komôr: 7 rám / 5 krídlo
Dvere z profilov VEKA SOFTLINE 82AD vďaka svojej stabilite a výborným konštrukčným vlastnostiam umožňujú realizovať projekty s vynikajúcou energetickou účinnosťou.
- profil triedy A s veľmi hrubými stenami
- inovatívny viackomorový systém s konštrukčnou hĺbkou 82 mm s dvoma tesneniami pre vynikajúcu ochranu proti poveternostným vplyvom
- je vhodný pre novú výstavbu i pre rekonštrukciu
- špeciálne hlboké uloženie skla s hĺbkou zasklievacej drážky 25 mm pre optimalizovaný priebeh izoterm bráni okrem iného tvorbe nežiadúceho kondenzátu na vnútornej strane.
- prah: bezbarierový
Opláštenie (AluClip) dodáva dverám elegantný vzhľad, chráni plastový rám pred deformáciami vplyvom slnečného žiarenia, predlžuje životnosť a ponúka širokú škálu farieb.
- Tepelná izolácia: až 0,85 W/m²K
- Prenos tepla rámu: (Uf) 1,2 W/m²K
- Šírka zasklenia: až 52 mm
- Kovanie: KFV
- Stavebná hĺbka rámu: 87 mm (82 mm + 5 mm opláštenie)
- Výška rámu: /krídla/viditeľný/(hrúbka) 86/127/178 mm
- Farba: RAL odstíny / VEKA® nestandard / VEKA® standard
- Počet tesnení: 3
- Určenie: všetky typy stavieb
- Počet komôr: 7 rám / 5 krídlo
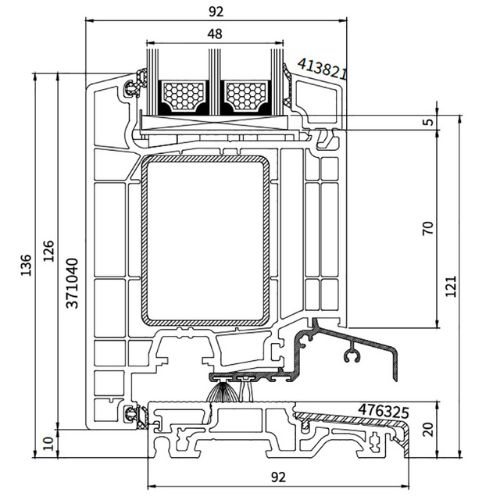
Krok za dokonalosťou
Plastové dvere BlueEvolution 92 predstavujú špičku vo svojej kategórii. Podobne ako pri ďalších produktoch tejto generácie profilov, sú ich prednosťou najmä tepelno-
Dvere z profilu BlueEvolution sú určené pre náročných klientov a svojím tepelnoizolačnými vlastnosťami sú určené do nízkoenergetických, ultra nízkoenergetických a pasívnych stavieb, kde pri zasklení alebo pri vložení okrasnej výplne o hrúbke 48 mm, dosahuje až Ud=0,75 W/m2K. S použitím zámkov KFV AS 2750, dosiahnu triedu bezpečnosti až RC2
- počet komôr: 6
- konštrukčná šírka: 92mm
- sklo: izolačné trojsklo: do 60 mmm
- teplý rámik
- koeficient prestupu tepla trojsklo: Ug=0,5W/m2K
- koeficient prestupu tepla celé okno: Uw=0,73W/m2K
- súčiniteľ prestupu tepla Ud=0,75W/m2K (výplň 48mm)
- tesnenia: 3 / 2 dorazové,1 stredové /
Perfektné izolačné vlastnosti dverí Salamander Streamline zabránia zbytočným únikom tepla z domácnosti, zatiaľ čo ich vysoká pevnosť sa postará o bezpečnosť a bezproblémový chod dlhé roky. Prioritne sú tieto dvere určené pre nízkoenergetické domy, ale svoje uplatnenie nájdu aj pri renovácii starších domácností. Aby sme vyhoveli vycibrenému vkusu zákazníkov, dodávame dvere Salamander Streamline v rôznych dizajnový prevedeniach.
- počet komôr: 5
- stavebná hĺbka rámu: 76 mm
- stavebná hĺbka krídla: 76 mm
- stavebná výška rámu: 85 mm
- stavebná výška krídla: 130 mm
- hrúbka zasklenia: do šírky až 48 mm
- tepelná izolácia profilu Uf =1,2 W/ m²K
- prestup tepla dverami už od Uw = 0.77 W/m²








